Full Details
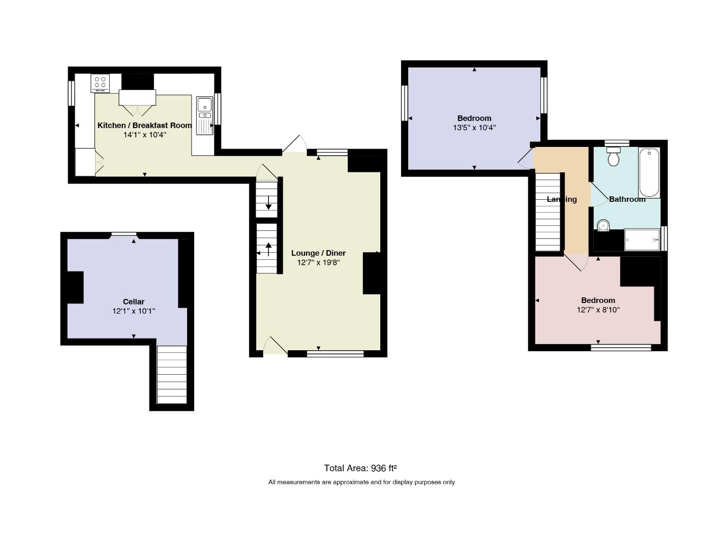
We are delighted to offer for sale this two double bedroom semi- detached home located on the highly sought after Heath Road and within walking distance of the Town Centre. The property is presented to the market in excellent decorative order and has deceptively spacious accommodation comprising: 19 ft lounge/dining room, refitted kitchen, versatile cellar room, two double bedrooms and a refitted first floor bathroom. Additional benefits include double glazing, gas heating, garden and driveway parking for two cars. Viewing is highly recommended.
Location:
Heath Road is recognised as one of Leighton Buzzard's most prestigious residential roads, offering an excellent balance of peaceful suburban living with convenient access to local amenities. The property is ideally situated within walking distance of sought after schooling, local shops and recreational facilities, while benefiting from excellent transport links including easy access to Leighton Buzzard mainline railway station providing direct services to London Euston in approximately 45 minutes. The location offers the perfect combination of established residential charm with modern convenience, making it highly sought after by discerning families.
Ground Floor:
The property opens into a welcoming living room which showcases period character with a feature fireplace and front aspect window filling the space with natural light. There is ample space for a range of furniture to suit all needs, with a dining room area to the rear. A further door leads to the rear garden and there is access to the first floor via the stairs. The hallway provides access to the cellar and kitchen. To the rear is the stylish fitted kitchen, arranged with a range of wall and base line units, work surfaces and space for appliances. The dual aspect windows allow an ambiance of light to flow through.
First Floor:
The first floor comprises of two well proportioned double bedrooms, with the master bedroom allowing for a range of furniture to suit all needs, the dual aspect windows make the space feel light and bright with neutral décor. The second bedroom overlooking the front which is a good sized double bedroom. A family bathroom, completes the upstairs nicely with underfloor heating an added bonus. It is fashionably fitted with a four piece suite comprises of a low level WC, hand wash basin, panel bath and shower.
Cellar
The cellar provides a versatile additional space, which is ideal for a home office, tv room or storage.
Outside:
The rear garden is designed for low maintenance, with a paved area which is, all enclosed to create a private and secure setting for outdoor dining and relaxation. There is a side gate which leads to the driveway and an outbuilding which is perfect for storage.
Disclaimer:-
Measurements and floor plans are approximate and for guidance only. Any prospective buyer should check all measurements. Floor plan coverings and fitments are for example only and may not represent the true finish of the property. Services at the property have not been tested by the agent and it is advised that any buyer should do the necessary checks before making an offer to purchase. Whether freehold or leasehold this is unverified by the agent and should be verified by the purchasers legal representative. The property details do not form part of any offer or contract and any photos or text do not represent what will be included in an agreed sale.
- Tenure: Freehold



















